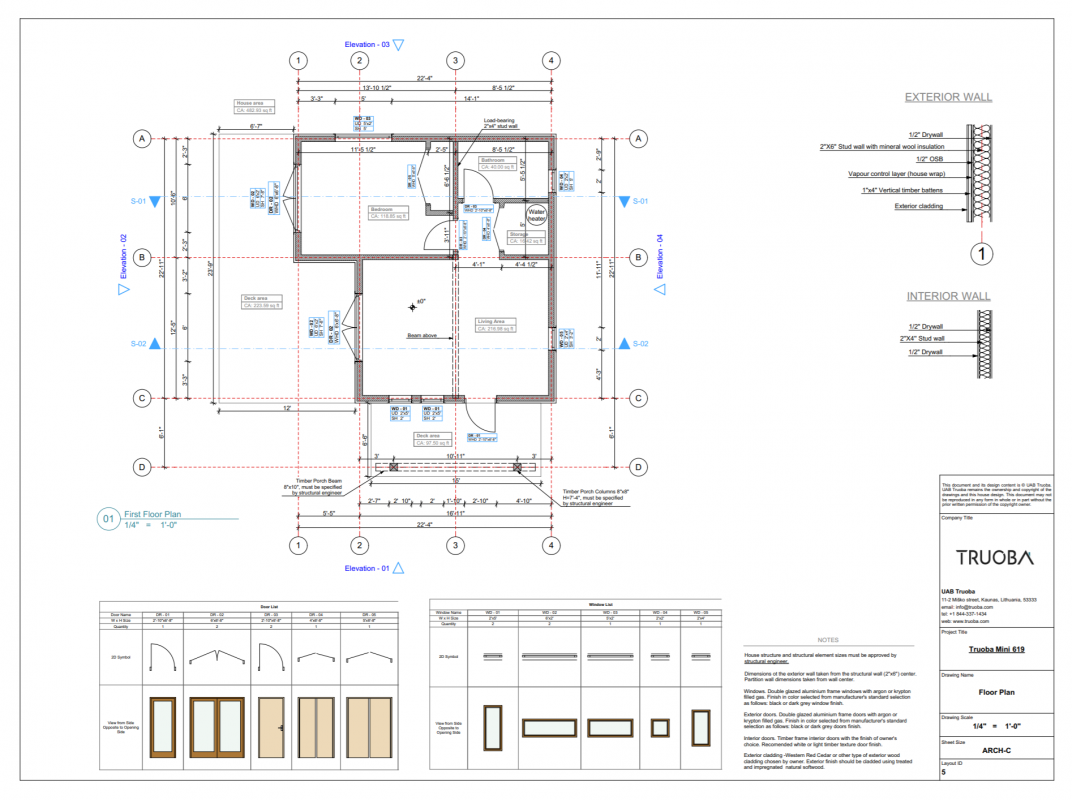
Free House Plan Construction Drawings

Imperial Drawings

View Imperial Drawings

Metric Drawings

View Metric Drawings

How to download construction drawings?

Once the drawings appear in the new window tab, press ‘Download’ icon on the top right window corner to download house construction drawings.